LOCATIONロケーション
西鉄バス「瑞穂」停
徒歩4分(約290m)
JR「博多」駅
徒歩13分(約1,000m)
福岡市地下鉄「博多」駅
徒歩13分(約1,000m)
博多バスターミナル
徒歩18分(約1,400m)
Shopping
ファミリーマート
徒歩1分(約80m)
サニー
徒歩1分(約80m)
ドラッグイレブン
徒歩2分(約90m)
セブンイレブン
徒歩2分(約120m)
Public & Leisure with Facilities
タイムズカー
徒歩2分(約110m)
エニタイムフィットネス
徒歩5分(約350m)
山王公園
徒歩9分(約650m)
コマーシャルモール博多
徒歩15分(約1,200m)
Financial Institutions
福岡銀行
徒歩5分(約400m)
福岡小林郵便局
徒歩6分(約450m)
Medical Institutions
加茂歯科
徒歩2分(約90m)
博多駅南とくながクリニック
徒歩5分(約350m)
DESIGNデザイン
EQUIPMENT機能性とデザイン性を兼ね備えた多彩な設備・仕様
ROOM & DETAIL
スタイルのある快適な暮らしを実現する、こだわりの設備。

ルームパーテーション引戸(A.Gtypeのみ)
間取りのアレンジが自在にでき、シーンに応じて空間を「仕切る」「つなぐ」間仕切。
多彩な空間を活用できます。

ウォークインクローゼット
収納力に優れ、衣類や生活家電、雑貨などの収納ができます。美しくすっきりとしたリビングスペースを楽しめます。
エントランス(シューズボックス・ミラー)
自由に取り外しが可能なシューズボックスは長い傘やロングブーツなどが収納できます。また、外出の際に身だしなみをチェックできるミラーを配置しました。

スライド式ハンガーレール

LEDダウンライト

モニター付きインターホン

ルームエアコン

換気レジスター

自動お湯張り機能付き給湯リモコン(追焚き1DKのみ)

人感センサー

洗えるクロス

ドアストッパー
KITCHEN機能美とスタイルを備えた充実のキッチンスペース
高さ85cmのシステムキッチン
日本人の20代〜30代男性の平均身長は約172cm、女性の平均身長は約159cm※。男女共に使いやすいキッチンを考慮し、カウンター高さを85cmに設定。人工大理石フルフラットカウンターを採用、作業とお手入れが簡単です。
※文部科学省の学校保健統計調査・運動能力調査より
ホーローキッチンパネル
ホーローの持つ高級感溢れる美しい表面光沢と優れた耐火性能により、簡単なお手入れでキレイに保てます。ホーロー製だからマグネットが付くので、キッチンの壁一面に取り出しやすい収納を作ることができます。
2口コンロ
調理油過熱防止装置、消し忘れ消火機能、立ち消え安全装置、焦付消火機能など数々の機能を搭載した、便利で安全なSiセンサー付

ワイドシンク

キッチン収納

手元灯(E.Ftypeのみ)

レンジフード

人工大理石ワークトップ

キッチンダウンライト
BATHROOM快適さを追求した、くつろぎのバスタイム

新W節水シャワーヘッド
(ワンストップ機能付)
シャワー水量を調節でき、ワンストップ機能により、シャワーヘッドを持ったまま使用を止める事もできます。
※1試算条件:年間水使用量=約30,519ℓ
従来品シャワー年間水使用量=約58,690ℓ


サーモスタッド混合水栓

シェルフ

フラッグストーンフロア

ヘアキャッチャー

自動お湯張り機能付き給湯リモコン(追焚き1DKのみ)

浴室換気乾燥暖房機
POWDERROOM 使いやすく美しいリラックスできる空間

オリジナル洗面化粧台
タカラスタンダード株式会社と共同開発したオリジナル。
デザイン性と機能性を両立した仕様は、空間と調和した美しいマテリアルを有しています。

HANSGROHE(ハンスグローエ)
from GERMANY
1901年ハンス・グローエ氏がドイツで創業したバスルーム/キッチン/洗面用水栓金具・シャワー製品の老舗メーカー。数多くの特許を持ち、その革新的な製品群は、世界の一流ホテルやクイーンメリー二世号などの豪華客船でも採用されるなど、バスルーム製品のトレンドリーダーといえる存在です。そのデザインと品質は、高く評価され今日では世界130ヵ国以上に製品を供給しています。「HANSGROHE(ハンスグローエ)」ブランドは、イノベーションブランドとも言うべき、革新的なテクノロジーを追求するブランドです。

洗濯機パン

洗濯機上収納棚

洗面化粧台収納

洗面カウンター

タオルハンガー

ヘルスメータースペース

リモコンパネル
SANITARY


温水洗浄暖房便座トイレ
洗浄水を従来品に比べて約70%節水する経済的な超節水トイレ。
お掃除しやすさを究めたフチ形状は、お手入れカンタン、いつもキレイ。
快適でリラックスできる毎日を実現。



Comfortable & Structure
全室ペアガラス採用
遮音性・断熱性・結露防止に優れたペアガラスを設備。 光熱費にも配慮したECOな住まいを実現。

24時間低風量換気システム
窓を閉めたまま、自動的に室内の空気を外気と入れ替える24時間低風量換気システムを採用しました。

シックハウス症候群(ホルムアルデヒド)対策
建具や壁クロスの接着剤には、建材の規格(JIS・JAS)に基づく低ホルムアルデヒドの製品を採用しています。

Security安全と利便性の高いロックシステム
ICカードドアロック
非接触ICカードを受信部にかざすだけで認証・施解錠でき、変造・偽造されにくく高いセキュリティ性と利便性を実現したロックシステムを各住戸扉へ採用しています。

整ったブロードバンド・テレビ受信環境が日常をもっと楽しくする。
Internet24時間使い放題の光ファイバーインターネットを一括導入
◆入居者無料◆
全戸ギガスピードの光配線。
ダウンロード、アップロードの時間短縮、安定した高速インターネットの利用により、デジタル環境のインフラを構築しています。

全戸Wi-Fi使い放題。
入居者はモデムやルーターを用意することなく入居したその日からWi-Fiが使い放題の環境で、快適なネット接続が可能です。

TVスカパー対応物件
テレビ回線に光ファイバーを導入
地上デジタル放送、BSデジタル放送はもちろん、ベランダ等にアンテナを設置することなく、テレビ端子のあるどのお部屋でもスカパー!を閲覧できます。
(スカパー!等有料放送は別途個別契約が必要。NHK受信料は個別負担)

日々を安心して過ごせるセキュリティ。確かなモノづくりと日頃の備えがくつろぎを生む。
Security細やかな管理体制とシステムで入居者のセキュリティをサポート
カードキー対応オートロックシステム
ICカードを受信部にかざすだけで認証、施解錠。高いセキュリティ性と利便性を実現したロック・システムを採用しています。

外部からの不要な立ち入りを防ぐ安心のオートロック。
来客をカラー映像と音声で安全に確認するインターホンも標準装備。入居者の安全とプライバシーを守ります。

24時間遠隔監視カメラ
エントランス、駐車場、エレベーターに24時間監視カメラを設置。株式会社えん建物管理にて、状況を把握し、入居者様の安全な暮らしをチェック。24時間見守ります。

エレベーター内防犯カメラ
防犯力を強化する防犯カメラをエレベーター内に設置。エレベーター内の様子が、1階エレベーターホールの防犯モニターで確認でき、安心してエレベーターが使用できます。

Comfortable美しく快適に、上質で使い勝手の良い日々の暮らしやすさを
宅配ボックス
入居者本人が不在の場合でも、いつでも荷物の受け取り・受け渡しが可能な宅配BOXをエントランスに設置。単身世帯に便利で人気の設備です。※ご利用には、宅配業者へのサービス申請とご登録が個別に必要です。

メールボックス
投入口の最大化と、奥行き寸法の拡張により、大型メール便の受け取りを実現したメールボックスを採用。面倒な再配達の依頼などのストレスから解放されると共に、美しい印象をのこすインターフェイスは、エントランスをスマートに演出します。

ノンスリップシート
共用廊下部分は雨の日でも滑りにくいノンスリップシート貼りです。足元の安全と遮音性にも優れ、足音が響きにくいというメリットがあります。


駐輪スペース
駐輪ラックを設置。整理された駐輪スペースを確保し、住環境を整えています。

エントランス有線音楽放送
住まう方はもちろん訪問客にも寛いでいただけるよう、エントランスに常時有線放送によるBGMを流し、優雅な空間を演出します。

Structure
二重床断面図
上階からの振動や騒音等を減少させる、
二重床を採用しています。

外壁断面図
コンクリート厚を十分に確保し、その内側に断熱材を吹き付け、断熱性・遮音性に優れた構造です。

ダブル配筋
住戸内の主な壁や床の鉄筋は、高い耐久性が期待できるダブル配筋を採用。
※一部シングル配筋あり。

磁気式活水装置
磁気の作用で除菌効果のある水にすることができる水処理装置。
取付後はメンテナンスなしで半永久的に水道水を磁気活性化し、配管を浄化します。

直結増圧給水方式
給水管に増圧ポンプを取り付け、配水管の水を直接各戸の蛇口まで給水する方式を採用しました。受水槽方式ではないため、水質の汚染が軽減され衛生的です。

SAFETY GUARANTEE安心保証
住宅瑕疵担保責任保険
新築住宅に10年間義務付けられている瑕疵保証を登録業者が確実に行えるよう、補修費用を保険でサポート。
独自の技術基準を定め、建設中に専門の検査員による現場審査を実施。万が一保証期間中に登録業者が倒産しても、補修費用を100%カバー。(免責金額を除く)
長期修繕計画・管理方法
将来のマンションの資産価値を維持するため、巡回、定期点検、修繕費の管理など、長期的な視野にたった修繕計画をご提案します。また区分所有者全員で構成される管理組合との委託契約に基づき、管理、事務管理、清掃、設備管理の業務を管理会社が実施します。
RESIDENT SERVICE入居者サービス

株式会社えん賃貸管理が管理する賃貸物件にご入居いただいている方を対象としたサービスです。えんClub Off えんサポート24など賃貸管理・建物管理が連携を取ることができる弊社ならではの手厚いサービスを行っています。


COLOR COORDINATION
7タイプ 3カラー
ROOM TYPEルームタイプ
-
Atype
1DK
□ 住居専有面積 26.96㎡
□ バルコニー面積 5.95㎡


-
Btype
1R
□ 住居専有面積 24.45㎡
□ バルコニー面積 6.29㎡


-
Ctype
1R
□ 住居専有面積 24.41㎡
□ バルコニー面積 6.29㎡


-
Dtype
1R
□ 住居専有面積 24.41㎡
□ バルコニー面積 4.88㎡


-
Etype
1K
□ 住居専有面積 25.02㎡
□ バルコニー面積 4.88㎡


-
Ftype
1K
□ 住居専有面積 25.02㎡
□ バルコニー面積 6.29㎡
※F1は反転タイプ


-
Gtype
1DK
□ 住居専有面積 27.53㎡
□ バルコニー面積 5.95㎡


FLOOR PLAN
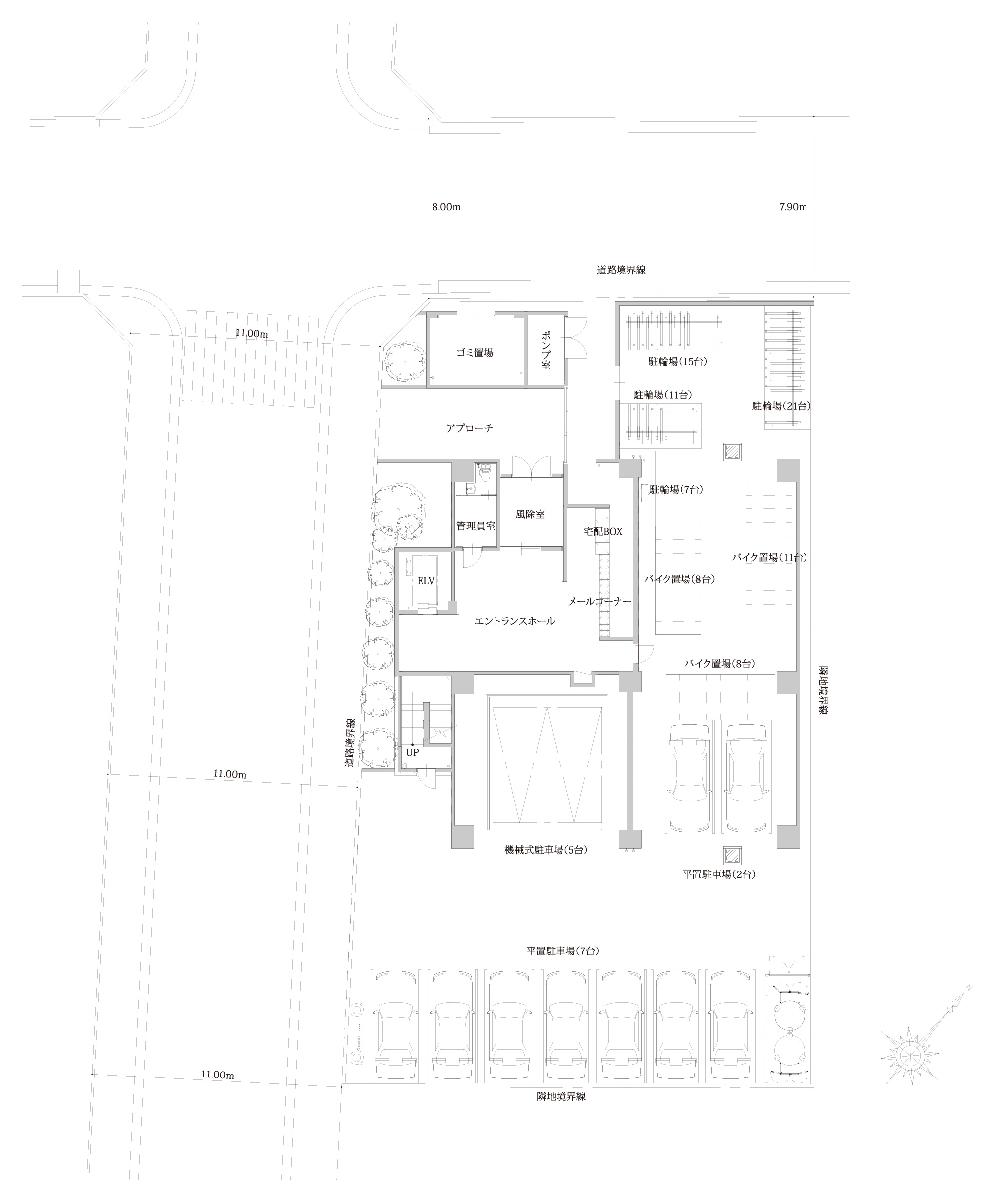
1階 平面図兼配置図

2階~14階 平面図

OUTLINE 物件概要
建築概要
| 名称 | エンクレスト博多駅南BASE |
|---|---|
| 住居表示 | 福岡県福岡市博多区博多駅南3丁目4番27 |
| 地番 | 福岡県福岡市博多区博多駅南3丁目57番 |
| 交通 | JR「博多」駅 徒歩13分 地下鉄空港線「博多」駅 徒歩13分 西鉄バス「瑞穂」停 徒歩4分 |
| 構造・規模 | 鉄筋コンクリート造 地上14階建 |
| 総戸数 | 104戸 |
| 建築確認番号 | 第JE20BA1-40-0172号 |
| 着工 | 2020年9月1日 |
| 竣工予定 | 2022年2月25日 |
| 入居開始予定 | 2022年2月26日 |
| 事業主 | 株式会社えんホールディングス |
| 設計・監理 | 株式会社おおたに設計 |
| 施工 | 株式会社福田組 |
| 管理 | 株式会社えん建物管理 |
| 設計図書閲覧場所 | 株式会社えん建物管理 |
設備概要 - 共用部分
| ガス | プロパンガス |
|---|---|
| 電気 | 九州電力 |
| 給水 | 福岡市水道局 |
| 排水 | 公共下水道(合流式) |
| 防災・防犯 | 誘導灯・非常用照明・非常コンセント・連結送水口・スプリンクラー設備・屋内消火栓・消火器・オートロック・非常解錠装置・自動火災報知設備・カラーカメラ付集合玄関機 |
| 防犯カメラ | 屋外:6台 ENT:2台 ELV:1台 |
| ゴミ処理 | ゴミ置き場 |
| テレビアンテナ | スカパーJSAT施設利用サービス |
| エレベーター | 13人乗用兼車椅子用エレベーター1基(90m/min) |
| その他 | メールボックス・宅配ボックス・ポンプ室・掲示板・管理員室・屋上看板・磁気式活水装置 |
| 駐車場 | 14台(平置き:9台 機械式:5台) |
| 駐輪場・バイク | 自転車:54台 バイク:27台 |
設備概要 - 専有部分
| ガス | プロパンガス(各戸専用メーター) |
|---|---|
| 電気 | 各戸専用メーター |
| 給水 | 福岡市水道局(各戸専用メーター) |
| 換気 | 24時間換気システム |
| 防災・防犯 | モニター付インターホン・ドアガード・ドアスコープ・スプリンクラー設備(11階以上)・自動火災報知設備 |
| 照明設備 | 玄関・キッチン・トイレ・洗面脱衣室・バスルーム・ウォークインクローゼット・キッチン流し台手元・洗面化粧台 |
| テレビコンセント | アウトレット設置 スカパー対応(個別加入) |
| インターネット設備 | UCOM光レジデンス(一括導入)全戸Wi-Fi対応・NTT(個別加入) |
| 電話 | 局線引き込み済(各戸1箇所) |
| 冷暖房設備 | エアコン設置(各戸1箇所) |
| 厨房設備 | システムキッチン |
| サニタリーユニット | ユニットバス・湯張り機能・追焚き機能(1DKのみ)・浴室換気乾燥暖房機・節水多機能シャワーヘッド・物干バー・洗面脱衣室・洗面化粧台・洗濯機パン・温水洗浄暖房便座・ペーパーホルダー・タオル掛け |
| その他 | カーテンレール・網戸・物干金物・シューズボックス・プッシュ式レジスター・差圧式レジスター・ハンガーレール・人感センサー・ホーローキッチンパネル・ペアガラス |
※施工上の理由及び改良により、本内容は若干変更になる場合がありますので、あらかじめご了承ください。
住居専有面積はパイプスペースを含みます(MB・EPS・FBは含みません)。
掲載の写真はモデルルームを撮影したものであり、壁面タイルや床などの色調や材質が異なる場合があります。
家具・照明器具・調度品等は販売価格に含まれません。(2021年7月撮影)
■図面をご覧になるにあたって
計画図面を基に作成したもので、行政指導及び施工上、改良・変更となる場合があります。予めご了承ください。建物すべての面積は各タイプの専用面積の壁芯にて算出しておりますので、内法計算による登記簿記載面積は多少減少します。
外構関係については、施工上やむを得ず変更になる場合があります。あらかじめご了承ください。階数および各タイプによって柱の太さ、壁の厚さ、梁下・下り天井の形状が多少相違する場合があります。設計・仕様等は施工の都合上、また行政指導上、変更になる場合があります。あらかじめご了承ください。方位は多少の誤差があります。図面に記載されている寸法はmm単位です。端数は切り捨ててあります。
更新日:2021/11/19





