エンクレスト博多PARKSIDEエンクレスト博多PARKSIDE
P L A N

間取り

Room plan & Color coordination

1LDK

D・E・F

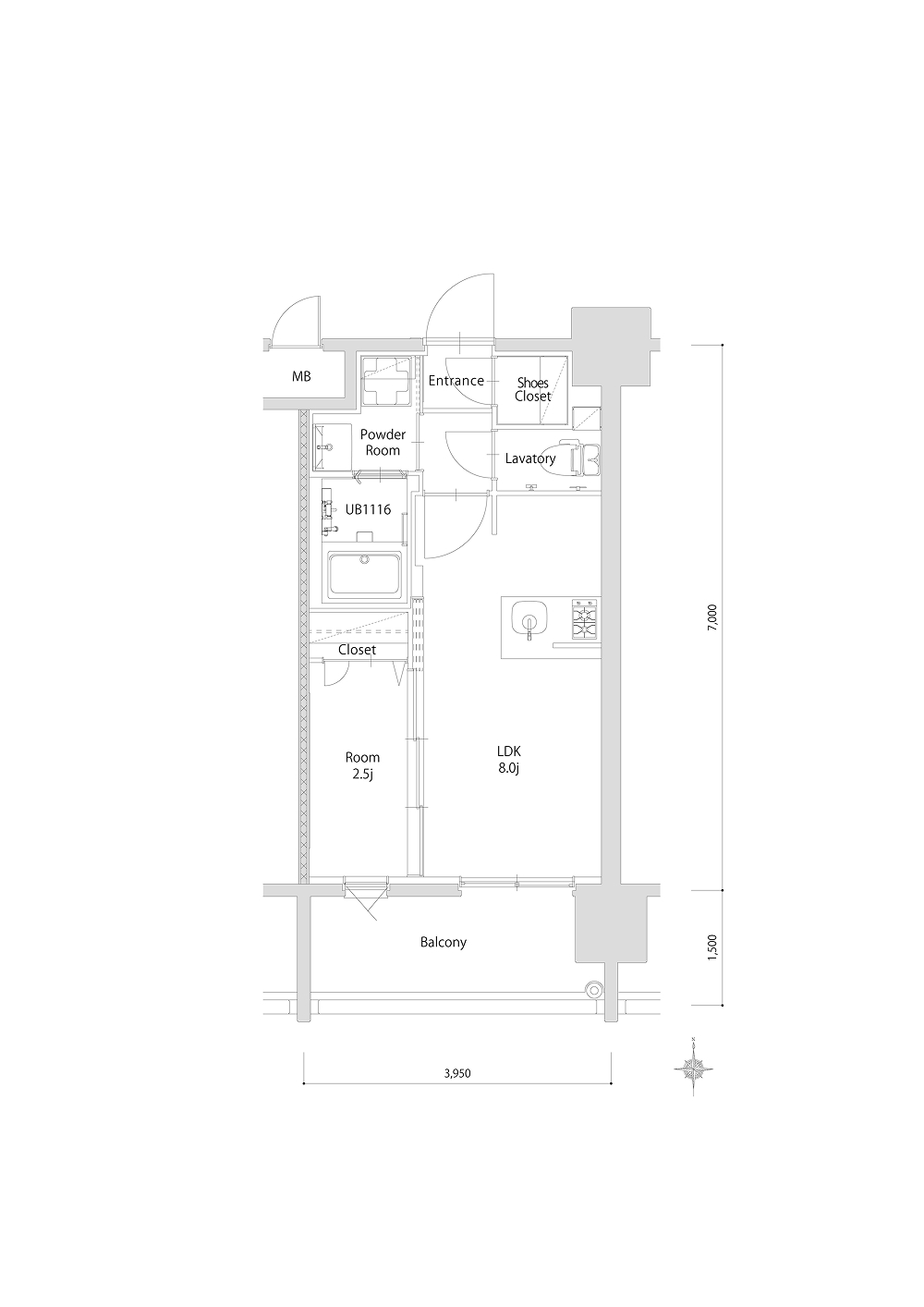
D1LDK

専有面積
27.97㎡
※D1は反転
バルコニー面積
5.25㎡(205号室のみ6.15㎡)

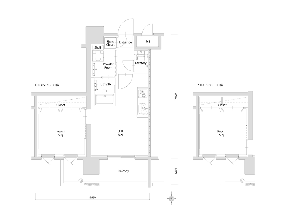
E1LDK

専有面積
34.35㎡
バルコニー面積
7.42㎡

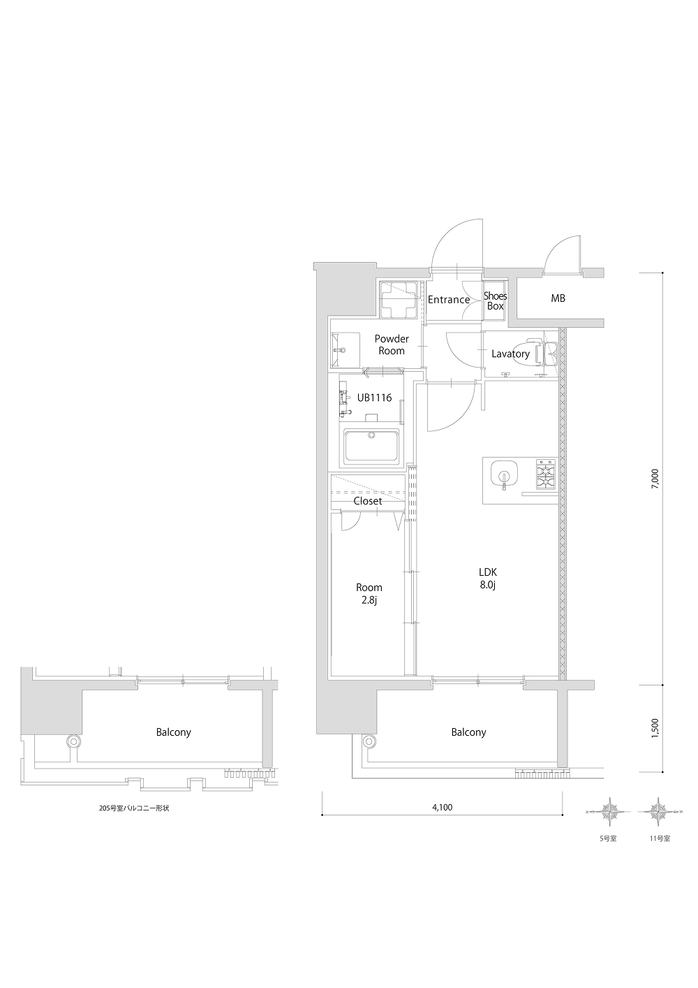
F1LDK

専有面積
27.20㎡
バルコニー面積
5.92㎡

※住居専有面積はEPS・MBを含みません。
掲載の写真はモデルルームを撮影したものであり、壁面タイルや床などの色調や材質が異なる場合があります。
家具・照明器具・調度品等は家賃に含まれません。(2025年6月撮影)

■図面をご覧になるにあたって
計画図面を基に作成したもので、行政指導及び施工上、改良・変更となる場合があります。予めご了承ください。
建物すべての面積は各タイプの専用面積の壁芯にて算出しておりますので、内法計算による登記簿記載面積は多少減少します。
外構関係については、施工上やむを得ず変更になる場合があります。あらかじめご了承ください。
階数および各タイプによって柱の太さ、壁の厚さ、梁下・下り天井の形状が多少相違する場合があります。設計・仕様等は施工の都合上、また行政指導上、変更になる場合があります。あらかじめご了承ください。
方位は多少の誤差があります。図面に記載されている寸法はmm単位です。端数は切り捨ててあります。